Skip to content
Call Us: 843-815-9575
Bluffton, SC 29910
menu
Home
Plans
Portfolio
Gallery
About Us
Careers
Contact
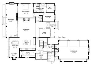
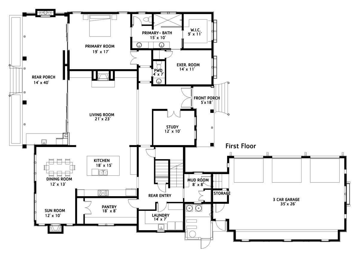
HECKLER-floorplans 5b