
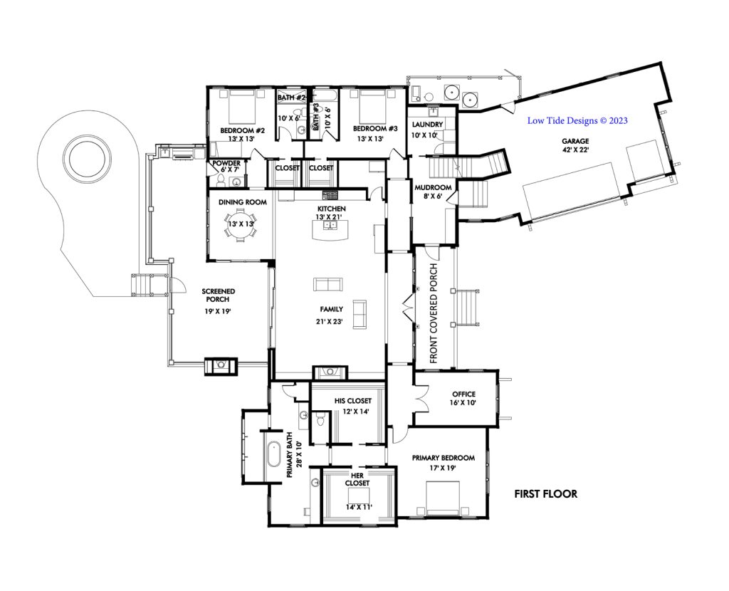
Stylish Contemporary Farmhouse-style home featuring 4 bedrooms, 4.5 bathrooms, and 4,299 square feet of modern, open-concept living.
This thoughtfully designed floor plan offers a spacious great room with vaulted ceilings, a gourmet kitchen, cozy dining area perfect for family gatherings, and a screened lanai perfect for outdoor entertaining. The primary suite boasts a spa-inspired bath and walk-in closets. Blending rustic charm with sleek finishes, this home offers the perfect mix of comfort, function, and modern farmhouse appeal.
House Dimensions
Width: 88’ 10”
Depth: 103’ 7”
For questions about plan adjustments and pricing, don’t hesitate to contact us via email or call 843-815-9575. We’re here to assist you!
All plans meet or exceed local and state requirements. All plans are complete construction documents including foundation plans, floor plans, elevations, sections, details, roof plan and electrical plans. All plans can be customized to suit your specific needs. Please call one of our associates at Low Tide Designs to discuss all of your concerns.